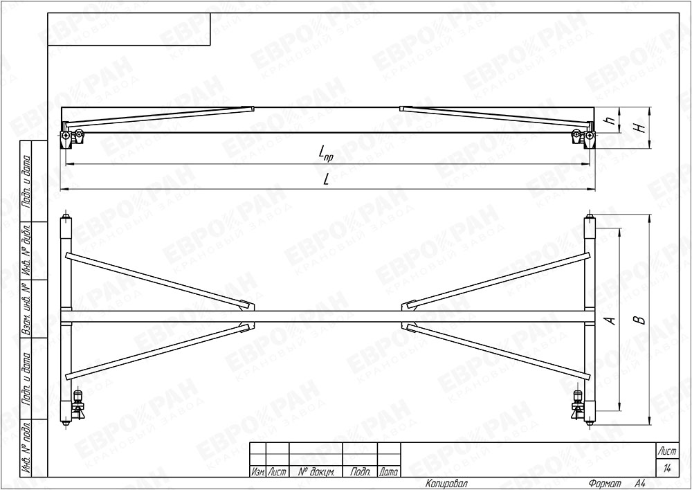
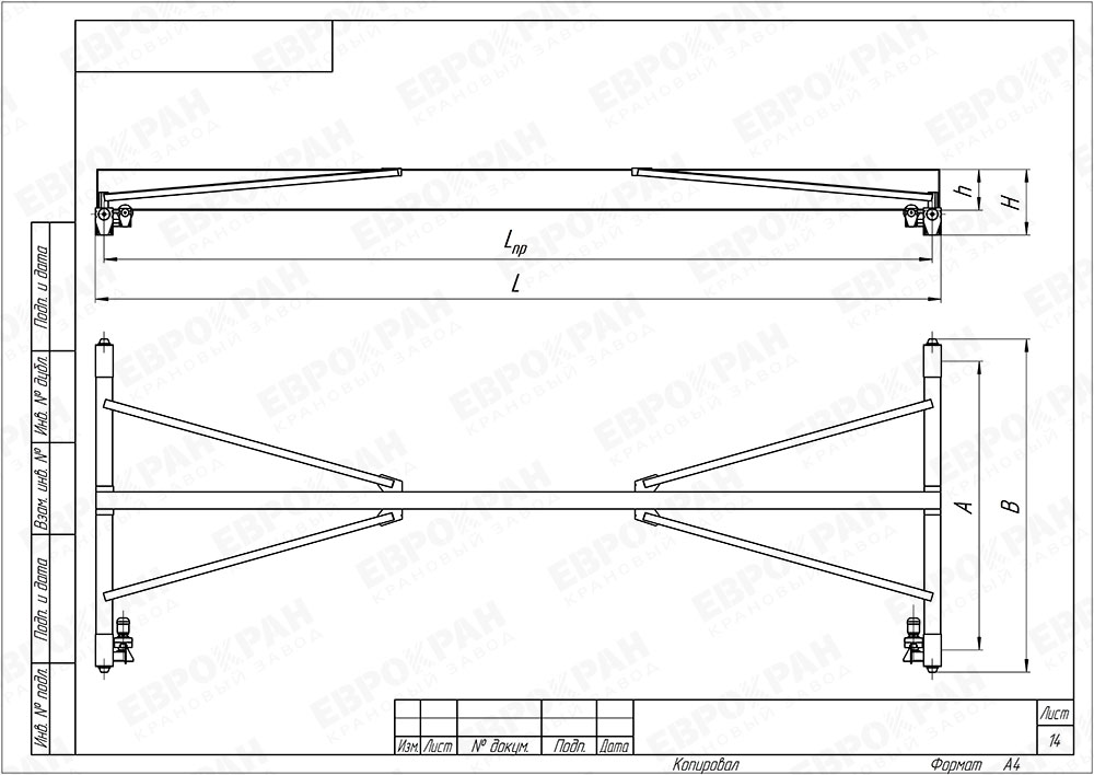
Габаритные чертежи мостовых кранов
Одной из ключевых характеристик при выборе мостового крана является его грузоподъемность. Специально для удобного выбора габаритных размеров таких кранов в соответствии с необходимой грузоподъемностью мы создали этот раздел нашего сайта.
Каждый мостовой кран, в том числе и тип его конструкции, проектируется с учетом индивидуальных характеристик рабочего участка и конструктивных особенностей здания. Мы учитываем состояние несущих стен и перекрытий, чтобы гарантировать безопасность и эффективность работы крана. Габаритные размеры, рассчитанные для определенной грузоподъемности, помогут подобрать подходящий тип крана, отвечающий вашим требованиям.
Габаритные чертежи мостовых кранов точно отображают их размеры и конфигурацию. Это позволяет эффективно планировать рабочее пространство, учитывая максимальные расстояния между крайними точками его узлов при перемещении грузов. На нашем сайте Вы найдете различные конфигурации мостовых кранов: двухбалочные, однобалочные, опорные, подвесные, с ручным и электрическим приводом.
Выберите мостовой кран по грузоподъемности и габаритам
Для выбора нужного мостового крана перейдите выберите необходимый тоннаж и перейдите на страницу, где представлены все возможные конфигурации, типоразмеры и базовые цены на мостовые краны соответствующей грузоподъемности.
Если у Вас возникли трудности с выбором параметров, свяжитесь с нашими специалистами. Мы внимательно изучим ваши технические требования, зададим уточняющие вопросы и предложим оптимальную конфигурацию мостового крана для Ваших нужд.
Мы стараемся сделать процесс заказа производства мостовых кранов максимально удобным и информативным для Вас.
