Выбор полукозлового крана по грузоподъемности
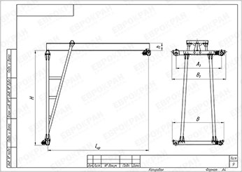
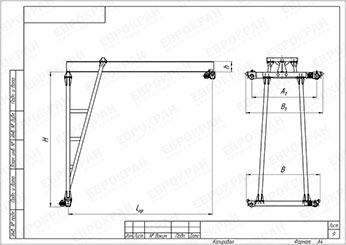
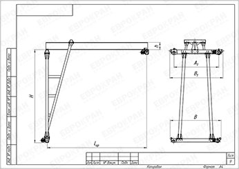
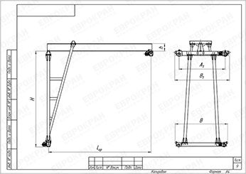
В связи с особенностями конструкции полукозловых кранов, очень важно при заказе на производство учитывать их габаритные размеры для эффективной дальнейшей интеграции в рабочую среду. Тип конструкции и габариты этих кранов напрямую зависят от его грузоподъемности. Мы создали этот раздел сайта, чтобы упростить выбор оборудования. Здесь вы найдете детализированные таблицы и чертежи однобалочных и двухбалочных полукозловых кранов с грузоподъемностью от 3,2 до 32 тонн, а также информацию о ценах и доступных комплектациях.
Выберите полукозловой кран по параметрам
Для подбора полукозлового крана перейдите на нужную страницу по грузоподъемности. Если требуется помощь, наши специалисты готовы предложить Вам оптимальное решение, учитывая все ваши технические требования и бюджетные ограничения. Мы обеспечим полное сопровождение от выбора до установки оборудования.
