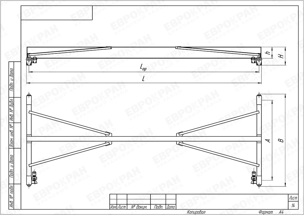
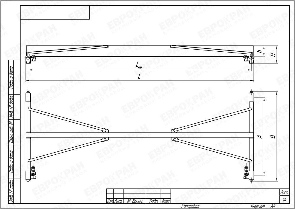
Габаритные чертежи кран-балок
Выбор типа кран-балки по ее грузоподъемности является наиболее эффективным способом подбора оптимального грузоподъемного оборудования для специфики Вашего рабочего участка. От этого параметра в большинстве случаев зависят габаритные размеры таких кранов в соответствии. Для облегчения подбора кран-балки мы создали этот раздел на нашем сайте.
Наши инженеры разрабатывают проекты кран-балок с учетом индивидуальных характеристик рабочего участка и конструктивных особенностей здания. Учитывается состояние несущих стен и перекрытий, расстояния между стенами и высота потолка или крыши. Поэтому важно учитывать габаритные размеры крана определенной грузоподъемности. Материалы, опубликованные на страницах этого раздела помогут вам выбрать подходящий тип кран-балки, который удовлетворит все ваши потребности.
Габаритные чертежи кран-балок точно отображают их размеры и конфигурацию, что позволяет эффективно планировать рабочее пространство. На нашем сайте вы найдете различные конфигурации кран-балок, включая: опорные, подвесные, с ручным и электрическим приводом.
Выберите кран-балку по грузоподъемности и габаритам
Для выбора кран-балки нужной грузоподъемности перейдите на соответствующую страницу. Там опубликована информация обо всех возможных конфигурациях, типоразмерах и базовых ценах.
Если у вас возникли трудности с выбором параметров, свяжитесь с нашими специалистами. Мы внимательно изучим ваши технические требования, зададим уточняющие вопросы и предложим оптимальную конфигурацию кран-балки для ваших нужд.
